Information

Année - Durée

2025

Programme

Immeuble artisanal et industriel

Mission

Concours

Ville

Genève

Photographie

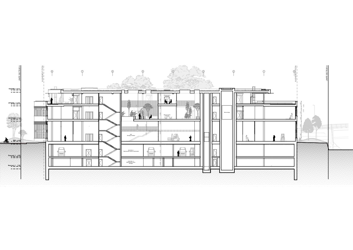
INNER SPACE: concours d’un immeuble artisanal et industriel

Le projet s’implante sur un site complexe, bordé par le tarmac de l’aéroport à l’Ouest et l’autoroute au Sud, et marqué par diverses contraintes sonores. Au cœur de ce contexte, un patrimoine végétal remarquable — un massif de chênes — structure le projet et devient l’élément central autour duquel s’organise l’architecture.

Le bâtiment, en « L », crée une protection naturelle vis-à-vis des nuisances et dialogue avec le parc paysagé. Deux atriums, au cœur du volume, introduisent lumière et porosité, faisant entrer le végétal et l’air dans l’espace de travail.

À l’intérieur, la spatialité « INNER SPACE » favorise les échanges, le travail et l’artisanat, tout en offrant des zones de réunion et des circulations fluides. La trame structurelle et les cloisons modulables permettent une grande flexibilité des espaces, alliant fonctionnalité, confort et qualité sensible de l’environnement.

Année - Durée

2025

Programme

Immeuble artisanal et industriel

Mission

Concours

Ville

Genève

Photographie

Projets connexes

Rénovation et transformation d’un lieu de santé

Agrandissement d’un centre de physiothérapie du Petit-Lancy

Rénovation d’un appartement au centre ville, genève

Deux villas d’exception à Corsier (chantier en cours)

Pierre Ambrosetti Architectes
Résumé de la politique de confidentialité

Ce site utilise des cookies afin que nous puissions vous fournir la meilleure expérience utilisateur possible. Les informations sur les cookies sont stockées dans votre navigateur et remplissent des fonctions telles que vous reconnaître lorsque vous revenez sur notre site Web et aider notre équipe à comprendre les sections du site que vous trouvez les plus intéressantes et utiles.